HAAG 4 « Bandraster » linéaire pincé

Plafonds en métal à aspect linéaire

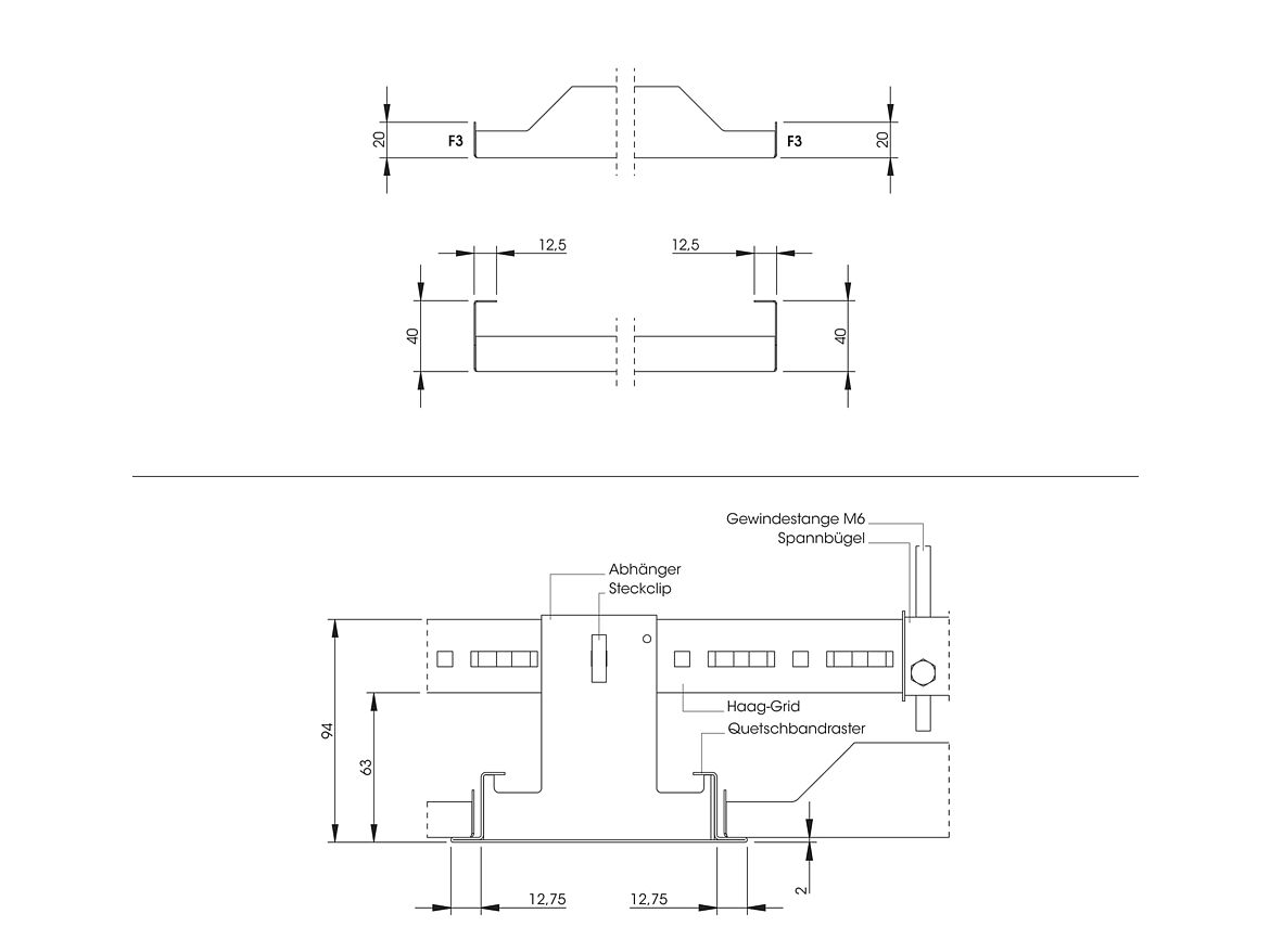
Le système de « bandraster » linéaire pincé HAAG 4 présente une ossature visible aux éléments parallèles. Cela permet également de faire varier la distribution des pièces, les cloisons étant fixées sur les profilés « bandraster » selon les besoins.

  • Panneaux démontables rapidement et facilement
  • Système de plafond économique

Informations techniques

Dimensions

Longueur : ≤ 3000mm

Largeur : ≤ 900mm (Largeurs plus importantes possibles après discussion. Des mesures supplémentaires pourront s'imposer pour réduire au minimum le fléchissement induit par les lois de la physique.)

Surface recommandée : ≤  1,5m²

 

Matériau et finition

Tôle d'acier galvanisée, aluminium : revêtement en poudre standard, blanc (RAL 9010 mat). Épaisseur de la couche : min. 60µm. D'autres teintes sont disponibles sur demande.

Aluminium: finition anodisée ou miroir.

Acier inox : finition brossée ou miroir.

 

Acoustique et perforation

Perforation standard : RD 1,5-22%. Sur demande, d'autres perforations sont disponibles.

Absorption acoustique : standard par voile acoustique noir (αw = 0,70 ; NRC = 0,70).

 

Impression

Des motifs et des textures peuvent être imprimés sur les tôles avec revêtement en poudre.

 

Réaction au feu

Standard, lisses ou perforés : A2-s1.dO selon EN13501-01 (non inflammable).