HAAG 2 Système à crochet double

Plafond en métal à panneaux rectangulaires accrochables sur leurs côtés longs

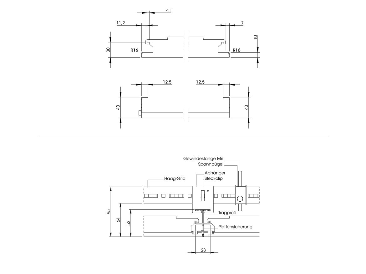
Le système de plafonds en métal HAAG 2 comprend une ossature cachée standard. Chaque panneau rectangulaire est suspendu dans le système sur ses côtés longs et peut être facilement démonté sans outils. Sur demande, le plafond peut être sécurisé afin qu'on ne puisse pas le soulever.

  • Agencement flexible
  • Joint en option sur le côté perpendiculaire, ossature visible au travers

Informations techniques

Dimensions

Longueur : ≤ 3000mm

Largeur : ≤ 900mm (Largeurs plus importantes possibles après discussion. Des mesures supplémentaires pourront s'imposer pour réduire au minimum le fléchissement induit par les lois de la physique.)

Surface recommandée : ≤  1,25m²

 

Matériau et finition

Tôle d'acier galvanisée, aluminium : revêtement en poudre standard, blanc (RAL 9010 mat). Épaisseur de la couche : min. 60µm. D'autres teintes sont disponibles sur demande.

Aluminium : finition anodisée ou miroir.

Acier inox : finition brossée ou miroir.

 

Acoustique et perforation

Perforation standard : RD 1,5-22%. Sur demande, d'autres perforations sont disponibles.

Absorption acoustique : standard par voile acoustique noir (αw = 0,70 ; NRC = 0,70).

 

Impression

Des motifs et des textures peuvent être imprimés sur les tôles à revêtement en poudre.

 

Comportement au feu

Standard, lisses ou perforés : A2-s1.dO selon EN13501-01 (non inflammable).