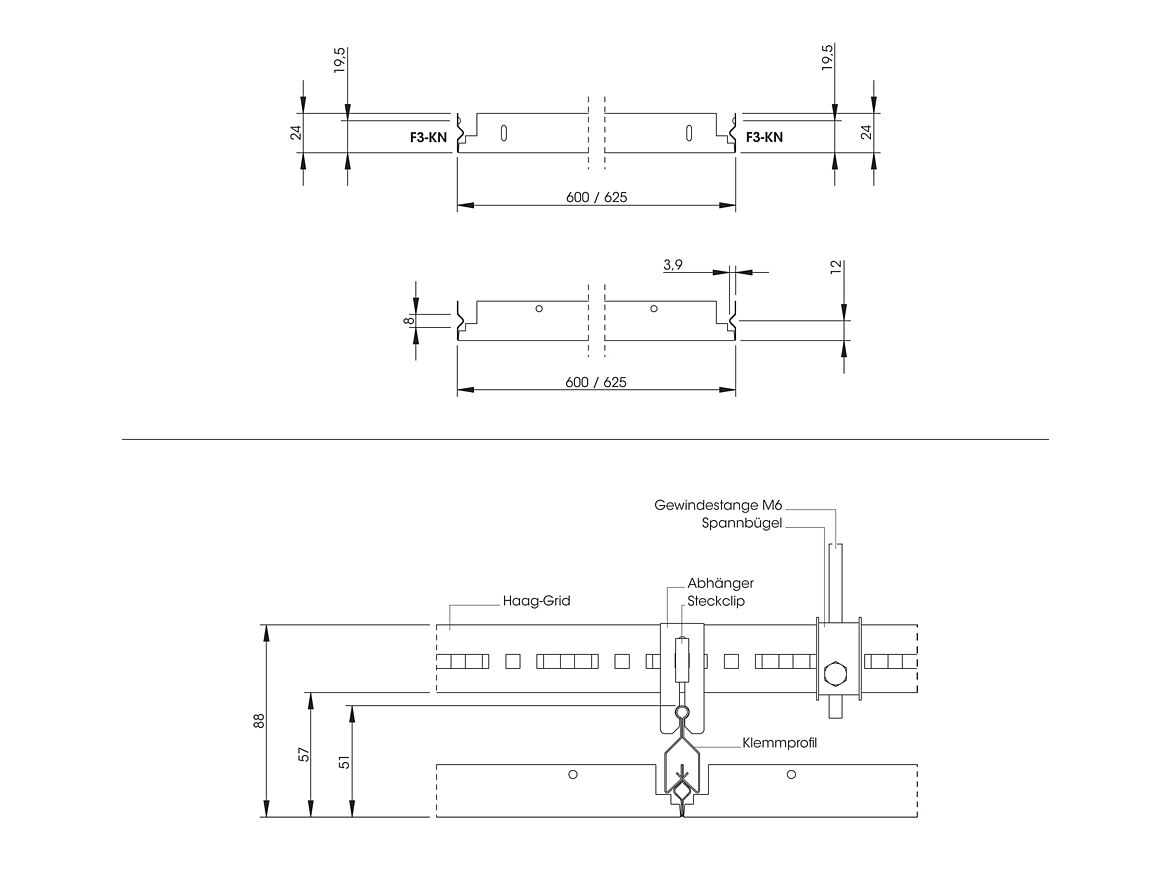
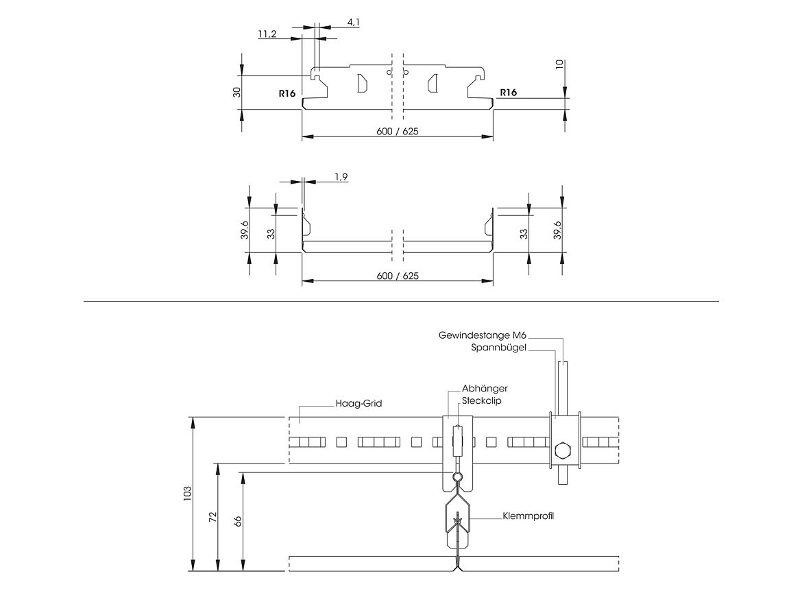
HAAG 3 QP Klemmsystem

Drucksteife Metalldecke mit abnehmbaren Quadratplatten

Das Metalldeckensystem HAAG 3 QP ist ein Klemmsystem, das sich besonders für Räume eignet, die eine drucksteife Abhängung benötigen. Die Deckenelemente sind fugenlos aneinander gestossen, so dass die Unterkonstruktion nicht sichtbar ist.

  • Schnell und einfach demontierbare Platten
  • Geeignet für geschützte Aussenbereiche

Technische Informationen

Abmessungen

Modul 600: 600x600mm

Modul 625: 625x625mm

 

Material und Oberfläche

Verzinktes Stahlblech: Standardpulverbeschichtung weiß (RAL 9010 matt). Schichtdicke: min. 60µm. Andere Farbtöne auf Wunsch möglich.

 

Akustik und Perforation

Standardperforation: RD 1.5-22%. Weitere Perforationen sind auf Wunsch möglich.

Schallabsorption: standardmäßig über schwarzes Akustikvlies (αw= 0,70; NRC= 0,70).

 

Bedruckung

Pulverbeschichte Zuschnitte sind mit Motiven und Texturen bedruckbar.

 

Brandverhalten

Standard, glatt oder perforiert: A2-s1.dO nach EN13501-01 (nicht brennbar).

Downloads