HAAG 6 Knoten-Bandraster

Metalldecke mit kreuzförmig verlaufenden C-Profilen

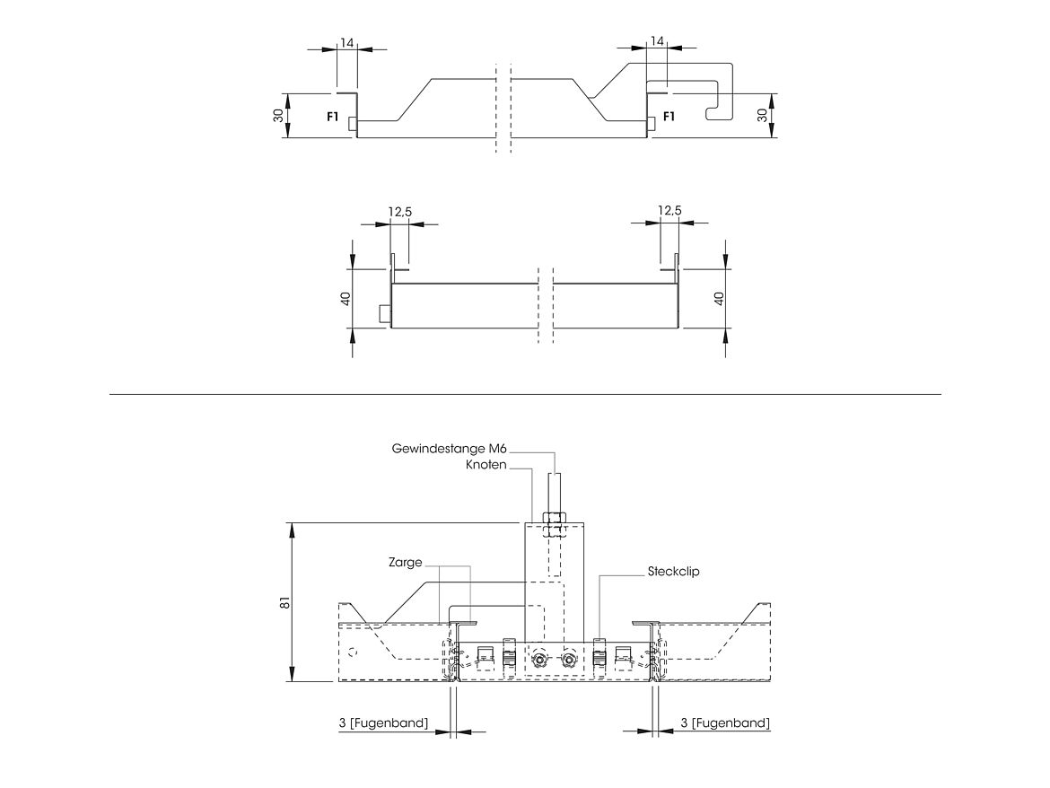
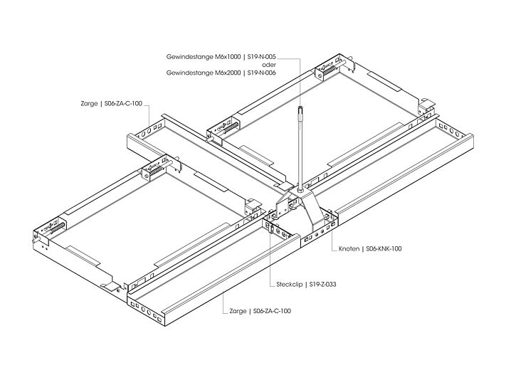
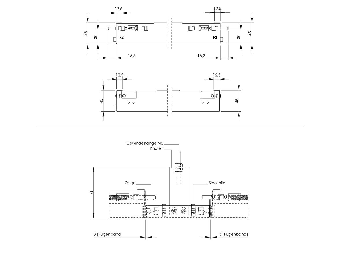
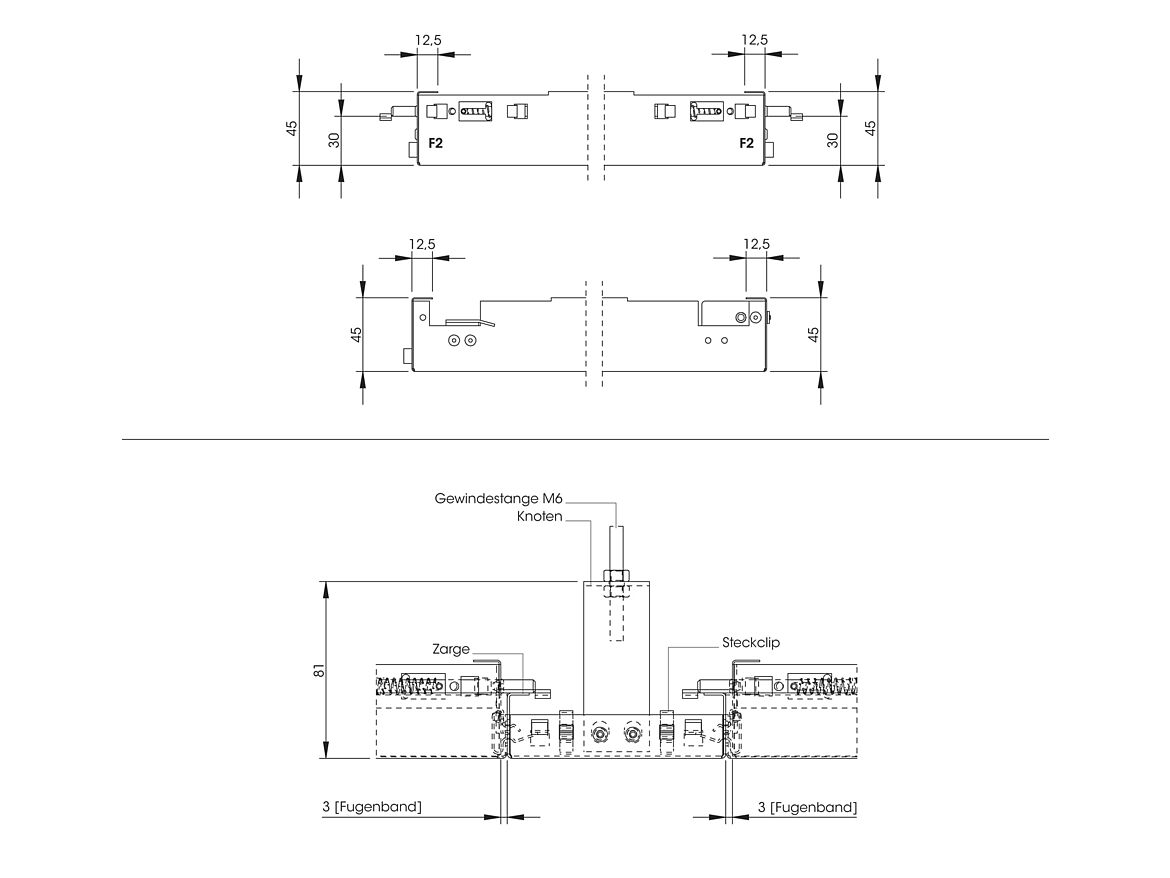
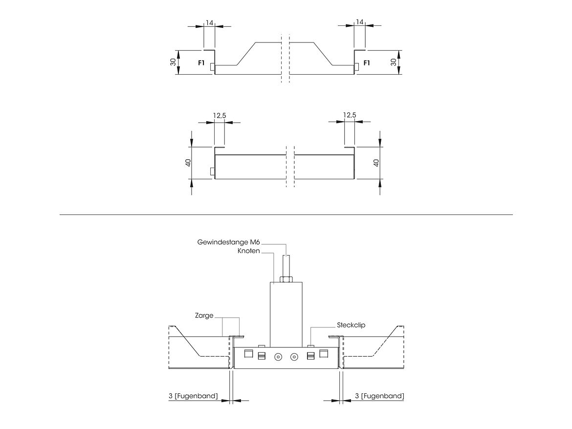
Das Knoten-Bandrastersystem HAAG 6 besitzt eine Unterkonstruktion aus längs- und querlaufenden Profilen, was ein symmetrisches Deckenbild erzeugt. Das Metalldeckensystem ermöglicht auch eine variable Raumaufteilung, indem verschiebbare Trennwände bei Bedarf an den parallel verlaufenden Bandrasterprofilen befestigt werden.

  • Unterkonstruktion mit Gewindestab abhängbar
  • Schnell und einfach demontierbare Platten
  • Abklapp- und verschiebbare Ausführung möglich

Technische Informationen

Abmessungen

Länge: ≤3000mm

Breite: ≤ 900mm (Grössere Breiten sind nach Absprache möglich. Eventuell sind zusätzliche Massnahmen zur Minimierung des physikalisch bedingten Durchhangs notwendig.)

Empfohlene Fläche: ≤1,5m²

 

Material und Oberfläche

Verzinktes Stahlblech, Aluminium: Standardpulverbeschichtung weiß (RAL 9010 matt). Schichtdicke: min. 60µm. Andere Farbtöne auf Wunsch möglich.

Aluminium: bandeloxiert oder spiegelglänzend.

Edelstahl: gebürstet oder spiegelglänzend.

 

Akustik und Perforation

Standardperforation: RD 1.5-22%. Weitere Perforationen sind auf Wunsch möglich.

Schallabsorption: standardmäßig über schwarzes Akustikvlies (αw= 0,70; NRC= 0,70).

 

Bedruckung

Pulverbeschichte Zuschnitte sind mit Motiven und Texturen bedruckbar.

 

Brandverhalten

Standard, glatt oder perforiert: A2-s1.dO nach EN13501-01 (nicht brennbar).

Downloads

HAAG 6 F1-F1

HAAG 6 F1 EASY

HAAG 6 F6-F6

HAAG 6 F6 EASY

HAAG 6 HOOK

HAAG 6 2x RIEGEL

HAAG 6 4x RIEGEL